Sold

A Spacious and Convenient Family Home

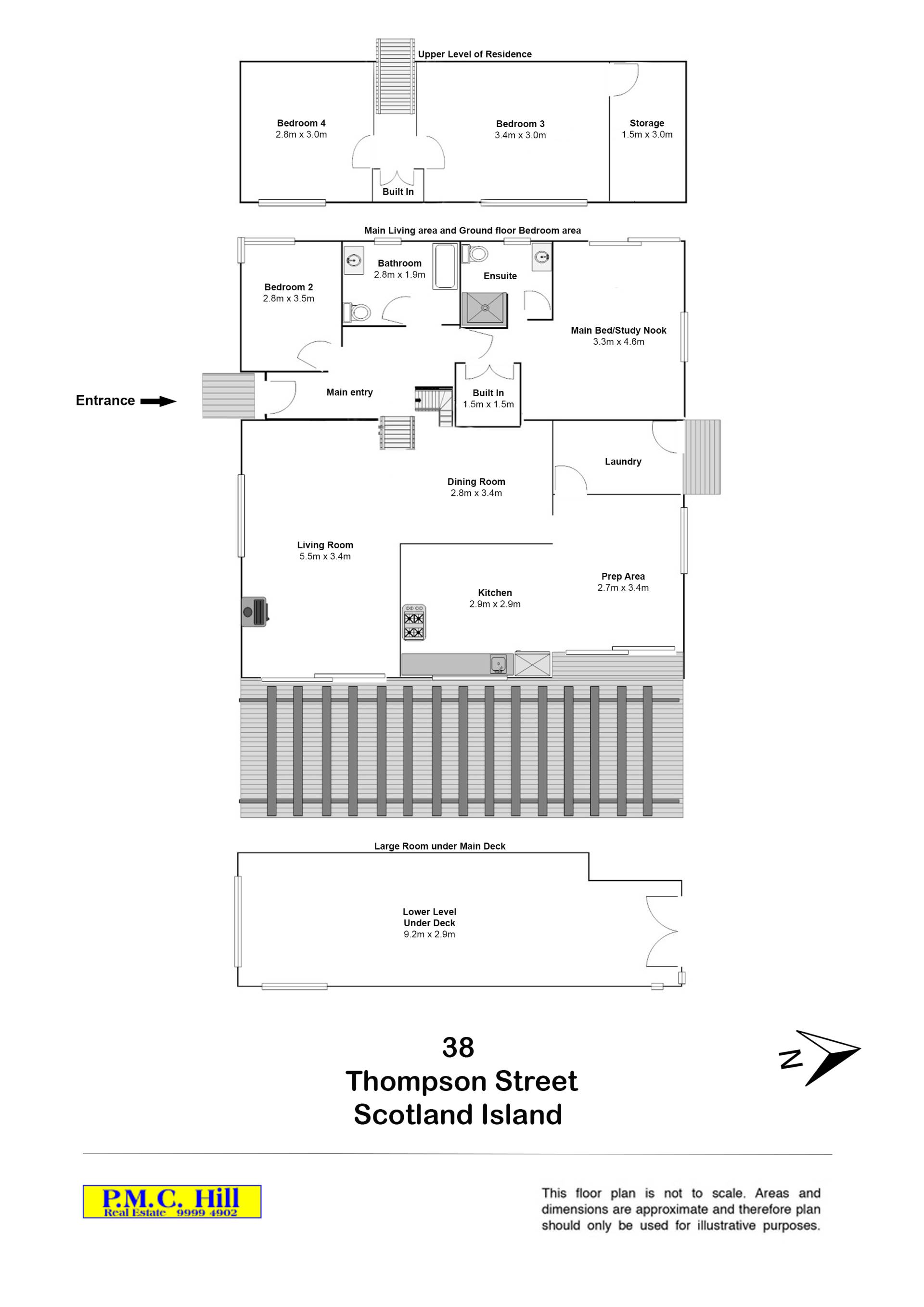
Positioned on a large and private 1100sqm corner block this tri level cedar home features lime washed bamboo flooring throughout and ducted air conditioning.

The spacious and open plan lower level consists of a modern cafe style kitchen, dining room and lounge area which boasts a combustion heater and skylight. This level leads onto a large full width covered entertaining deck which has a lovely outlook through trees over the easy care garden and a netted area used as a basket ball court.

A side second deck leads to a storage shed and provides access to the large separate fifth bedroom or home office.

The second level contains the main bedroom with a new ensuite, walk in wardrobe and an office space or reading nook. On this level there is also the main bathroom and another bedroom.

Two double bedrooms are on the top level both having large picture windows with one bedroom having access to a large ceiling storage area.

The landscaped grounds contain a separate cabin which makes an ideal teenager retreat or home office. Under the home is more storage space and a workshop area.

This convenient and spacious home provides an exceptional opportunity for a family looking for a unsurpassed life style on Pittwater.

Features

Deck
5 2 1,100 m2
Address 38 Thompson St, Scotland Island
Price SOLD
Property Type Residential
Property ID 153
Category House
Land Area 1,100 m2

Agent Details

Melanie Marshall photo

Melanie Marshall

0415 440 662
View Profile