Sold

Expansive Waterfront Residence

Nestled on the ridge of Lovett Bay and Elvina Bay this waterfront property is a large and private land holding of approximately 1600 sqm. Boasting stunning Pittwater views into both bays and surrounded by manicured flat grassed areas in a magnificent bush setting of the Ku-ring-gai National Park.

This property provides a sublime country like experience with the benefits of waterfront living.
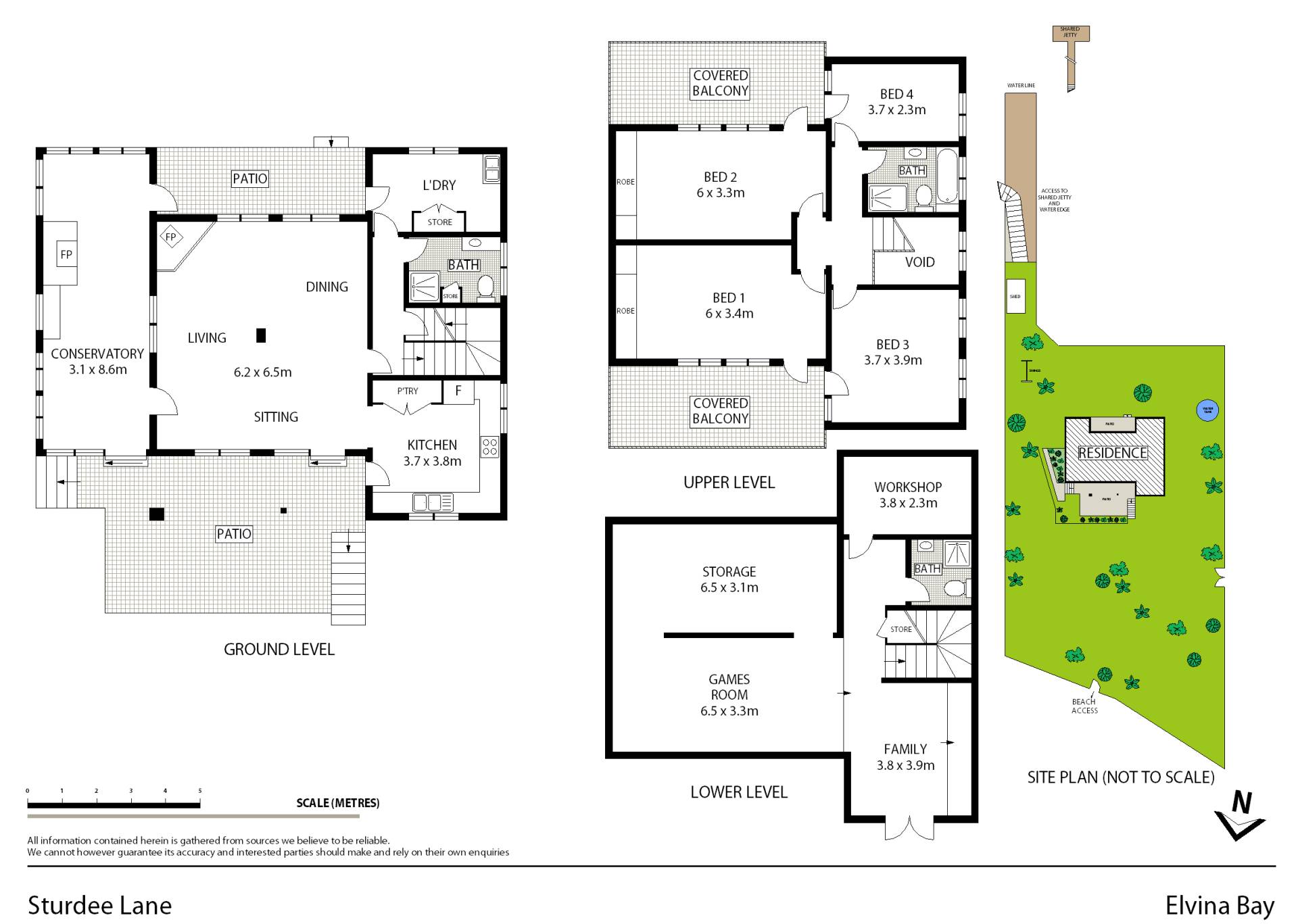
The home is a Swiss Chalet style and is an expansive family residence large enough to cater for one or more families with ample accommodation over three levels.

Consisting of four spacious bedrooms on the upper level with two having private decks showcasing the water views. The home has three bathrooms and on the lower level a massive entertaining area with enough space for a pool table, more accommodation, a bathroom and workshop facilities. Storage is provided on this level as well as in an upstairs attic.

The kitchen has stunning views into Lovett Bay while the large open plan living and dining room enjoys warmth from the combustion fire place. A large covered veranda or conservatory comes complete with a stone fire place and stain glass windows.

The property has ample water capacity and is connected to a mains offshore water line.

Swim or play in the sand from Lovett Bay beach, moor your boat on a shared jetty and pontoon or enjoy the bush walking from your gate direct into Ku-ring-gai National Park.

Features

Balcony Deck Fireplace
4 3 1,600 m2
Address 41 Sturdee Lane, Elvina Bay
Price SOLD
Property Type Residential
Property ID 252
Category House
Land Area 1,600 m2

Agent Details

Melanie Marshall photo

Melanie Marshall

0415 440 662
View Profile