Sold

Privacy, Space and Attention to Detail

A limited opportunity to purchase this beautifully appointed and unique home which has been designed and recently built by the architect owners.

Built on a sunny and sheltered north westerly facing block the home has water views through tall spotted gums into Elvina Bay and the Ku-ring-gai National Park. Adjoing a bush reserve the home is idyllically located in a tranquil and private bush setting which creates a peaceful ambiance and provides a wide sense of space.

The home has been extensively built from red ironbark, blackbutt and spotted gum timbers in a two storey solar passive design capturing the sun throughout the day yet excluding the summer heat with the use of expansive roof overhangs.

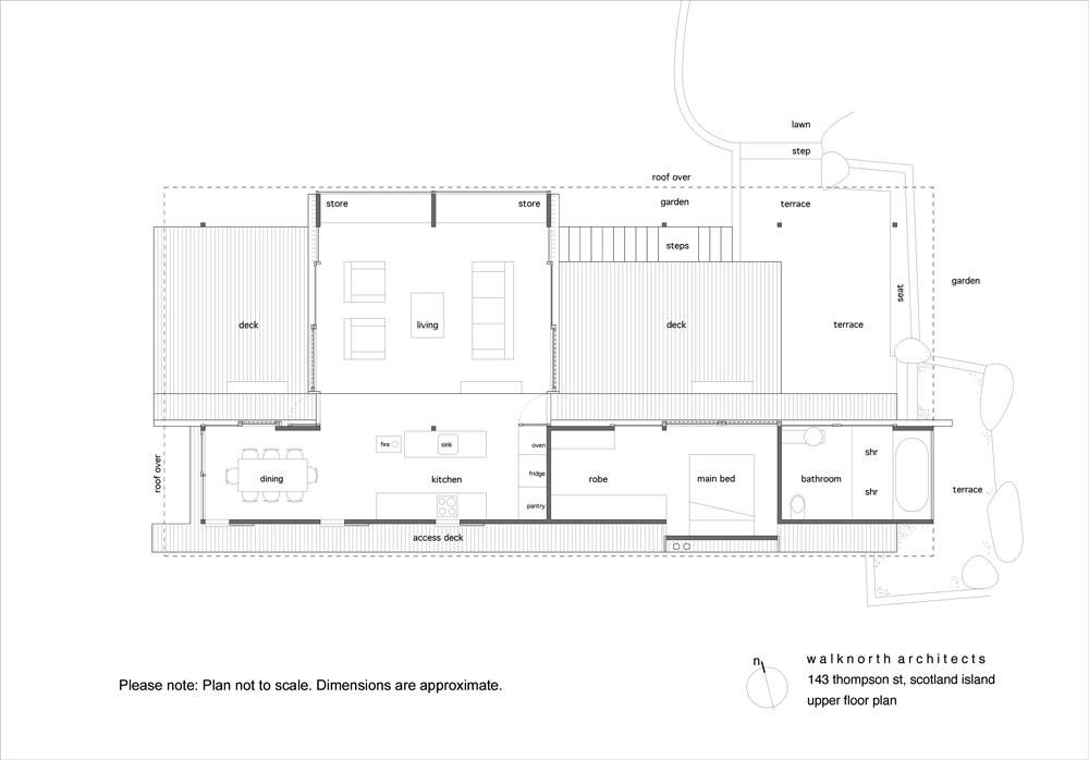
The open plan upper level with high and angled ceilings completely opens via wide sliding glass and timber doors creating an extension of space from the living room to a huge entertaining deck and a sandstone terrace. The galley style kitchen and dining room are also located here along with a wood burning stove and a covered deck which is a great place to relax in a hammock to enjoy the view.

Adjoining the upper deck is the spacious main bedroom with a walk in robe and the main and a streamline bathroom with double shower and bath with both rooms completely opening out to the beauty and seclusion of the bush.

The lower level consists of a second bedroom and an open studio or third bedroom which flows onto a lower terrace featuring a sandstone seat creating an inspiring space to have as a home office.

The second bathroom and laundry are also located on this level.

This property has been built to connect with nature and crafted with care and detail using natural sandstone, Australian hardwoods, copper light fittings, custom designed tap ware and landscaping to blend with the natural bushland and rock outcrops.

Don’t miss the opportunity to enjoy this uniquely styled as new home with the unbeatable Island lifestyle.

Features

Balcony Fireplace
3 2
Address 143 Thompson St, Scotland Island
Price SOLD
Property Type Residential
Property ID 276
Category House

Agent Details

Melanie Marshall photo

Melanie Marshall

0415 440 662
View Profile