Sold

Exceptional Waterfront Living

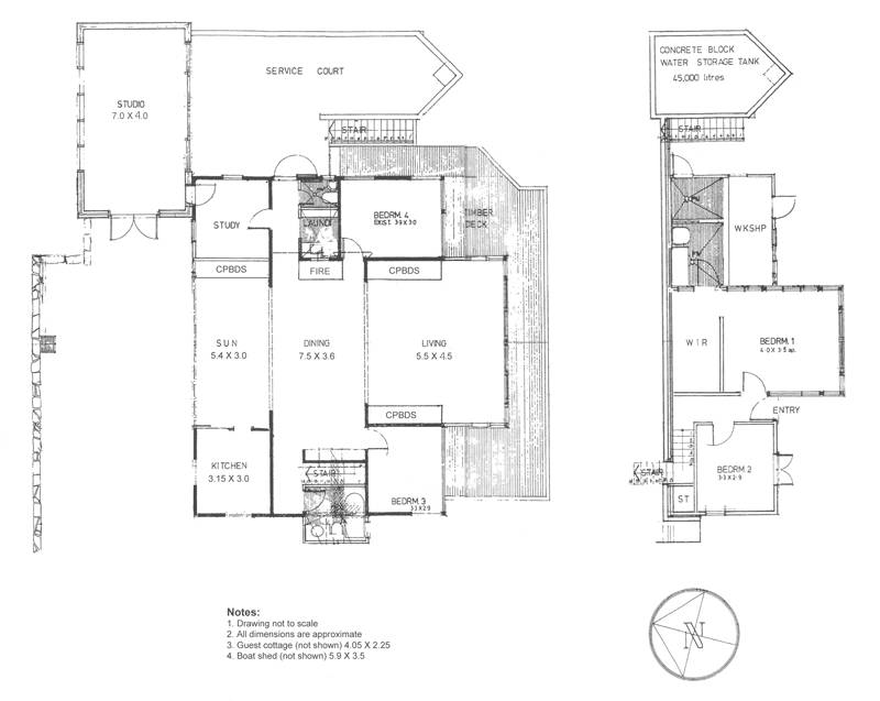
An original and spacious deep waterfront farm house on 1037 square metres in Elvina Bay which has been architectually enhanced and boasts both charm and character and offers relaxed living and sun drenched alfresco areas.

The home is light filled with warm interiors, high pitched ceilings and wide windows and doors which open onto fully wrap around decks to enjoy the stunning and tranquil 180 degree Pittwater views.

An elegant open plan lounge and dining room is featured with a combustion fire place, polished timber floors and reverse cycle air conditioning. A quiet room for an office or library leads to an adjoining large studio ideal for the artist, which in turn leads out to the vine covered terrace, gardens and a sun trap courtyard.

Comprising four bedrooms all with water views, the main with an ensuite and dressing room. There is a full second bathroom and a third toilet with under floor heating in some areas. Separate to the house a quaint guest cottage or fifth bedroom.

Located on a fully usable waterfront block complete with sandstone terraces and stairs, flagstone courtyards and a fully landscaped and enchanting fenced north facing rear garden with established fruit trees.

Fabulous deep waterfront facilities include a large stylish boatshed with loft accommodation and air conditioning, jetty, pontoon, davit for your kayak and your own sandy beach area.

The property comes complete with a goods trolley from waterside to your front door, solar hot water, large water supply and easy access to the local ferry wharf, Lovett Bay Beach and Ku-ring-gai National Park.

Features

Balcony Outdoor entertainment area Fireplace
5 1 1,037 m2
Address 27 Sturdee Lane, Elvina Bay
Price SOLD
Property Type Residential
Property ID 375
Category House
Land Area 1,037 m2

Agent Details

Melanie Marshall photo

Melanie Marshall

0415 440 662
View Profile